nestor brun

Lieu Toulouse
Programme Rénovation d’une maison de ville, conception-réalisation de mobilier
Surface 121 m2
Année 2024
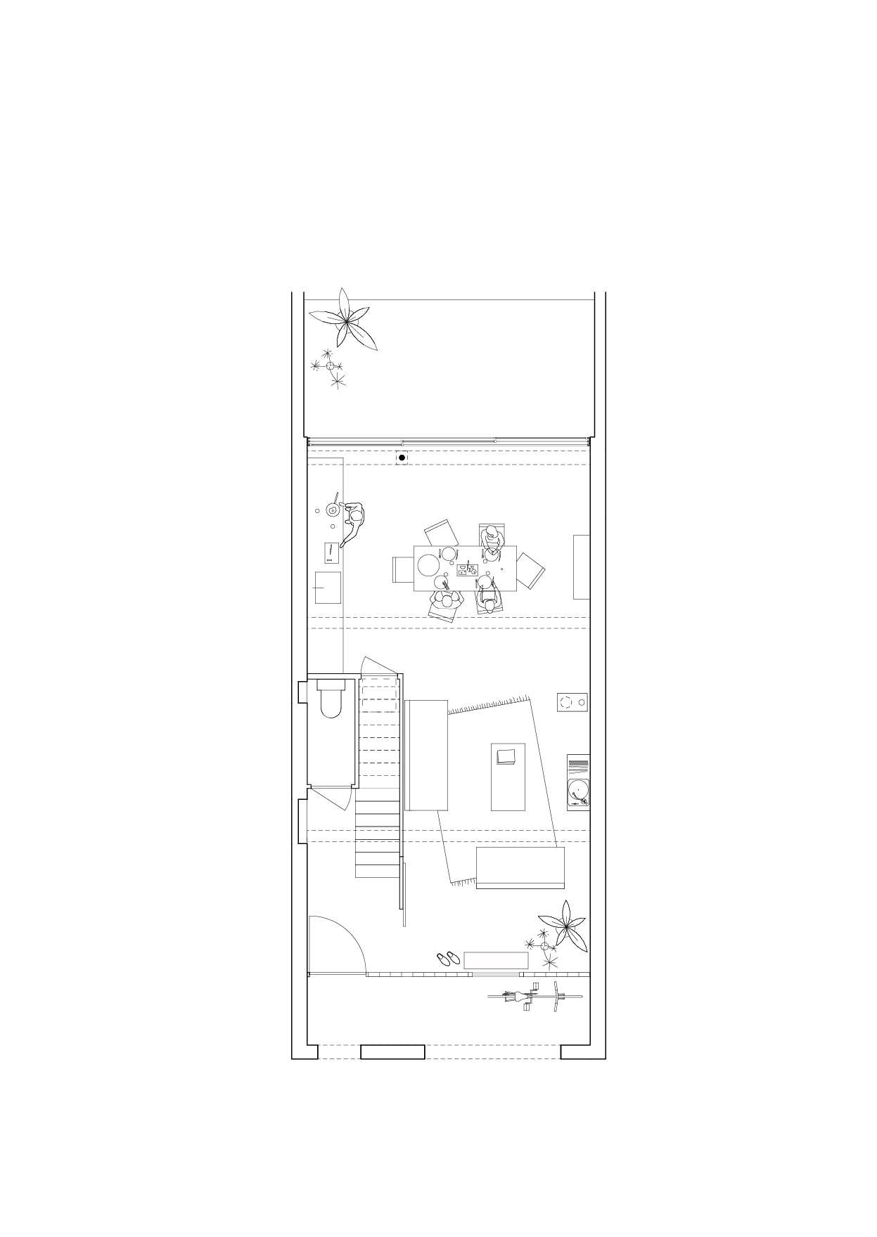
La maison NB s’inscrit dans un continuum. Le projet prend place dans une maison du quartier Saint-Cyprien, reconstruite dans les années 1970 sur l’emprise d’une ancienne toulousaine.
L’intervention repose sur une lecture attentive de l’existant et un travail de simplification. Le décloisonnement du rez-de-chaussée permet de retrouver lumière et relation au jardin, tout en révélant les éléments constructifs : murs en briques et galets, poutres et planchers hourdis. Les matériaux sont conservés, nettoyés ou réemployés, laissant apparaître les traces des transformations.
Le projet se prolonge par des interventions ponctuelles de mobilier conçu in situ, dans une logique sobre et expérimentale. L’ensemble affirme une architecture attentive à l’existant, où le chantier devient un lieu de projet et le temps une matière à part entière.













Publications
Divisare
ArchDaily
YellowTrace
AMC, Intérieurs 2024
Architectures à Vivre, Juin 2025