matabiau


Année 2018
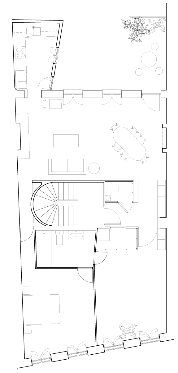
Lieu Toulouse
Status Livré
Programme Rénovation d’un appartement de 92m2






— architecte basée à toulouse spécialisée dans la rénovation / extension et le design de mobilier ︎
nestor brun rénovation
solférino rénovation
boulangerie du taur rénovation
collège M. Azaña concours